CONCEPTS to REALITY
Explore the design evolution through side-by-side comparisons of early sketches and the completed projects, highlighting the transformation from concept to execution. Each pairing shows how initial ideas were refined through material studies, spatial considerations, and technical coordination. What begins as a simple line or gesture becomes a fully realized lighting solution shaped by collaboration with Clients, Architects, Interior Designers, and Engineers.



Project: Confidential Tech Company
Architect: GENSLER
The idea was to create a well-illuminated tunnel that connects the space from one end to another.


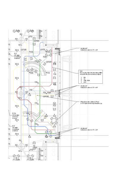
Project: Confidential Tech Company
Architect: GENSLER
This design started with a diagram of the NYC subway. With coordination, and a detailed direction from the Architect, we took it to where the experience became as real as it could be.




Project: Santana West, Phase 1
Architect: STUDIOS Architecture
We ran a photometric study and were able to check the light levels at the Plaza, as well as visualize a rendered view of the pilasters before Phase 1 & Plaza were built.


Project: Private Residence in Atlanta
Home Automation: Innovative Sight & Sound
Random Lines of light is the main feature of this project. Color-changing recessed lines create a playful mood. The Client is able to set the colors he wants during football season.
